Loaded
Living Room 1
Living Room 2
Living Room 2
Living Room 2
Living Room 2
Kitchen
Bedroom 1
Bedroom 2
Bedroom 2
Bedroom 2
Bedroom 2
Bedroom 2
Bedroom 2

Vilaris Courtyard Homes
Area: 3839 sqft
Year: 2023
Location: Bayan Lepas, Penang
Living Area

Explore the epitome of modern elegance in this stylish, contemporary home, designed with a minimalist aesthetic and a neutral color palette. The spacious living room features floor- to-ceiling storage cabinets with a large digital clock, a comfortable sectional sofa, and a modern armchair around a sleek coffee table on a light rug. The chic dining area captivates with a Wood table, six rattan-backed chairs, and three elegant pendant lights overhead. The bright kitchen boasts marble countertops, a central island with metal bar stools, and glass- fronted cabinets showcasing neatly arranged items. The sophisticated home office includes built-in desks, ergonomic chairs, a digital clock, and illuminated shelves displaying tasteful decor. The serene bedroom features a light wood accent wall, a comfortable bed with neutral linens, pendant lights, and an open wardrobe with meticulously organized clothes. Each room blends functionality with aesthetic appeal, creating a harmonious and inviting atmosphere that epitomizes contemporary living at its finest.

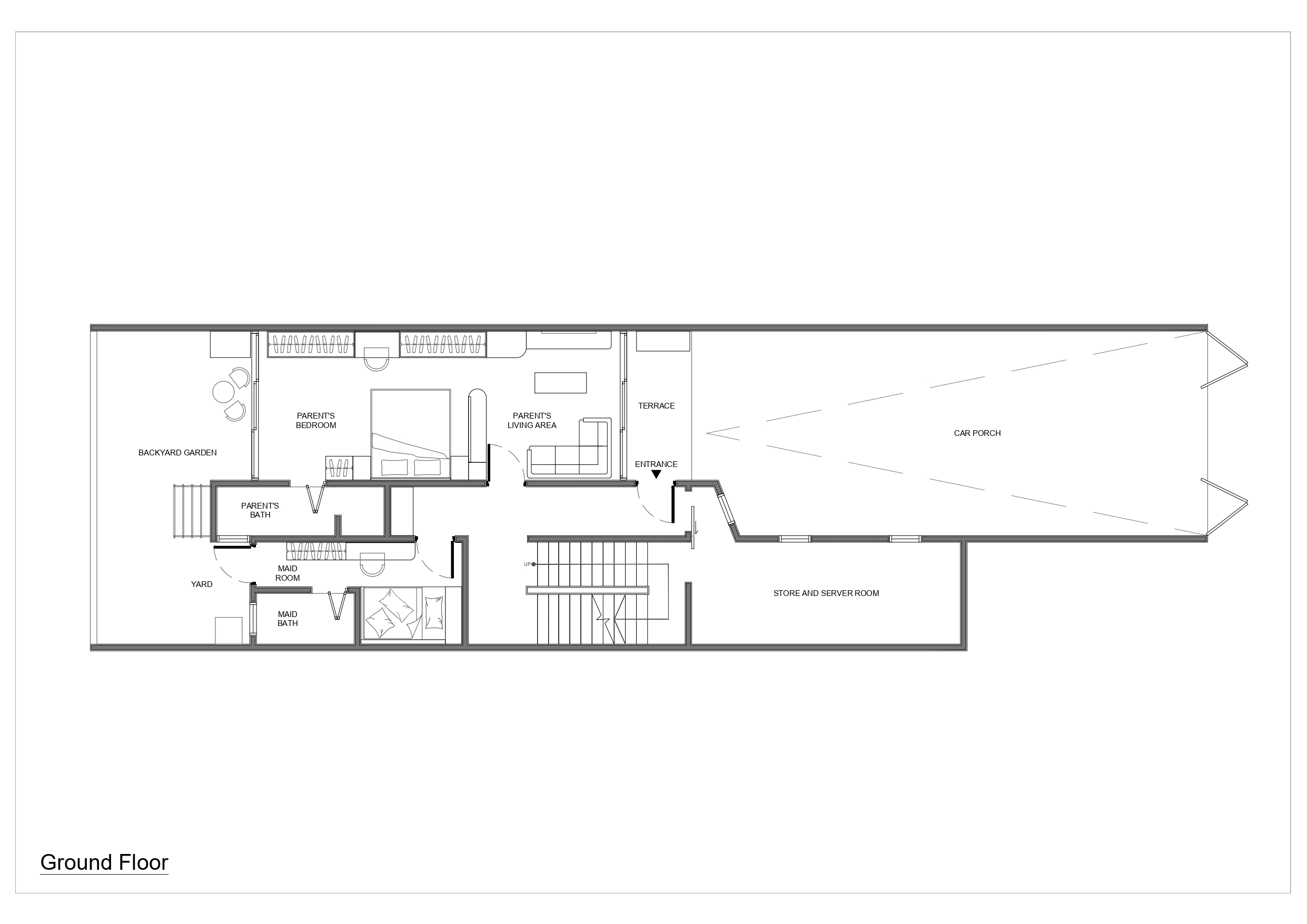
Vilaris Courtyard Homes ground floor plan layout
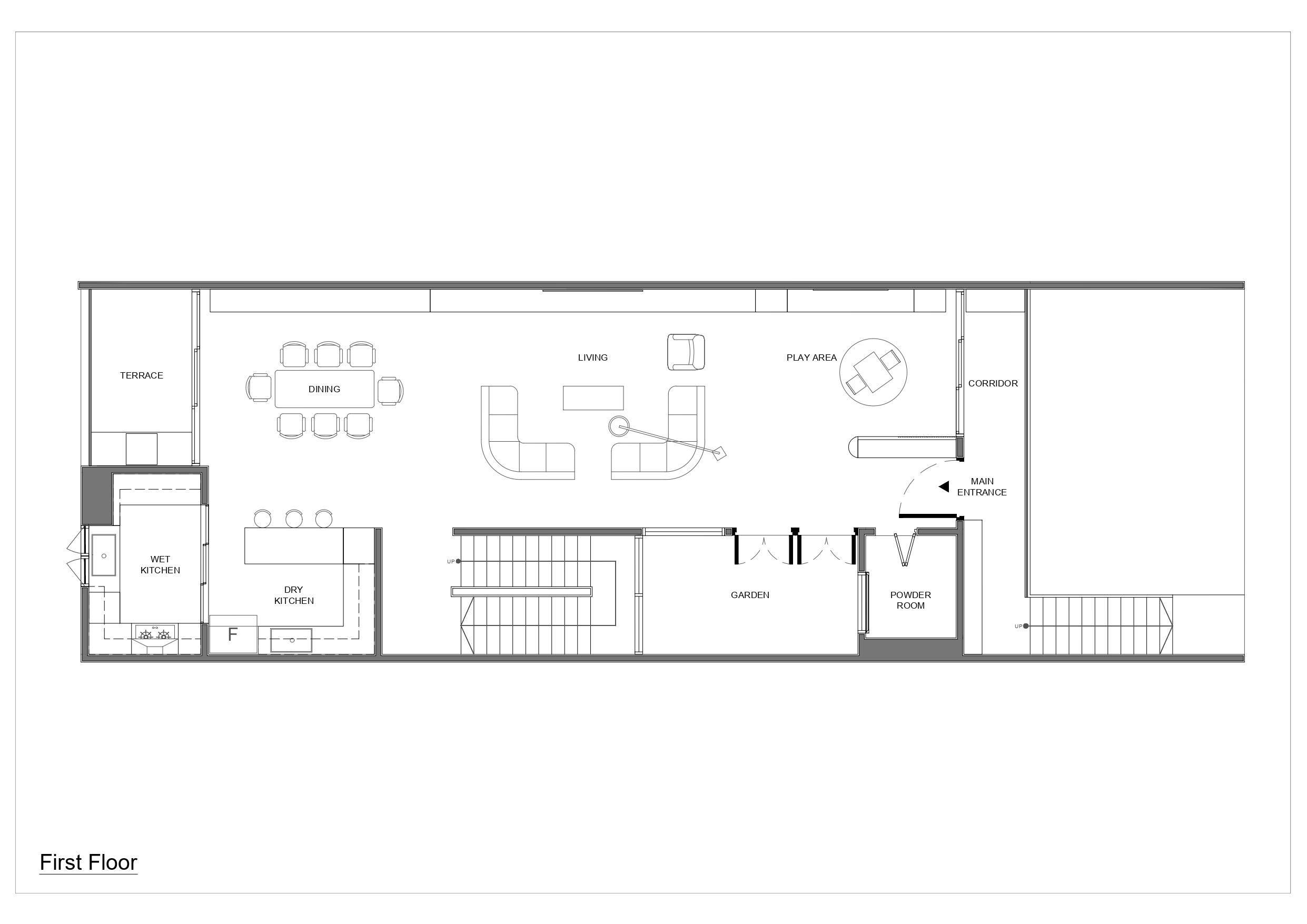
Vilaris Courtyard Homes first floor plan layout
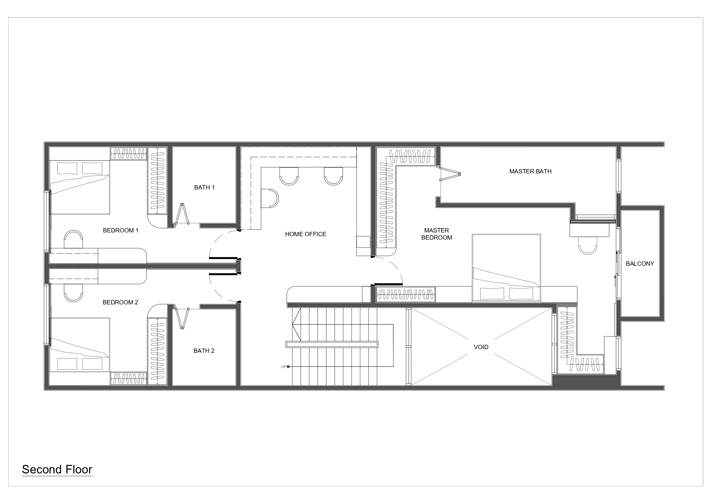
Vilaris Courtyard Homes second floor plan layout
Project Location